Parque Empresarial Prado del Espino, Boadilla del Monte, fantástica nave industrial de reciente construcción en venta, con acabados de lujo.
Características:
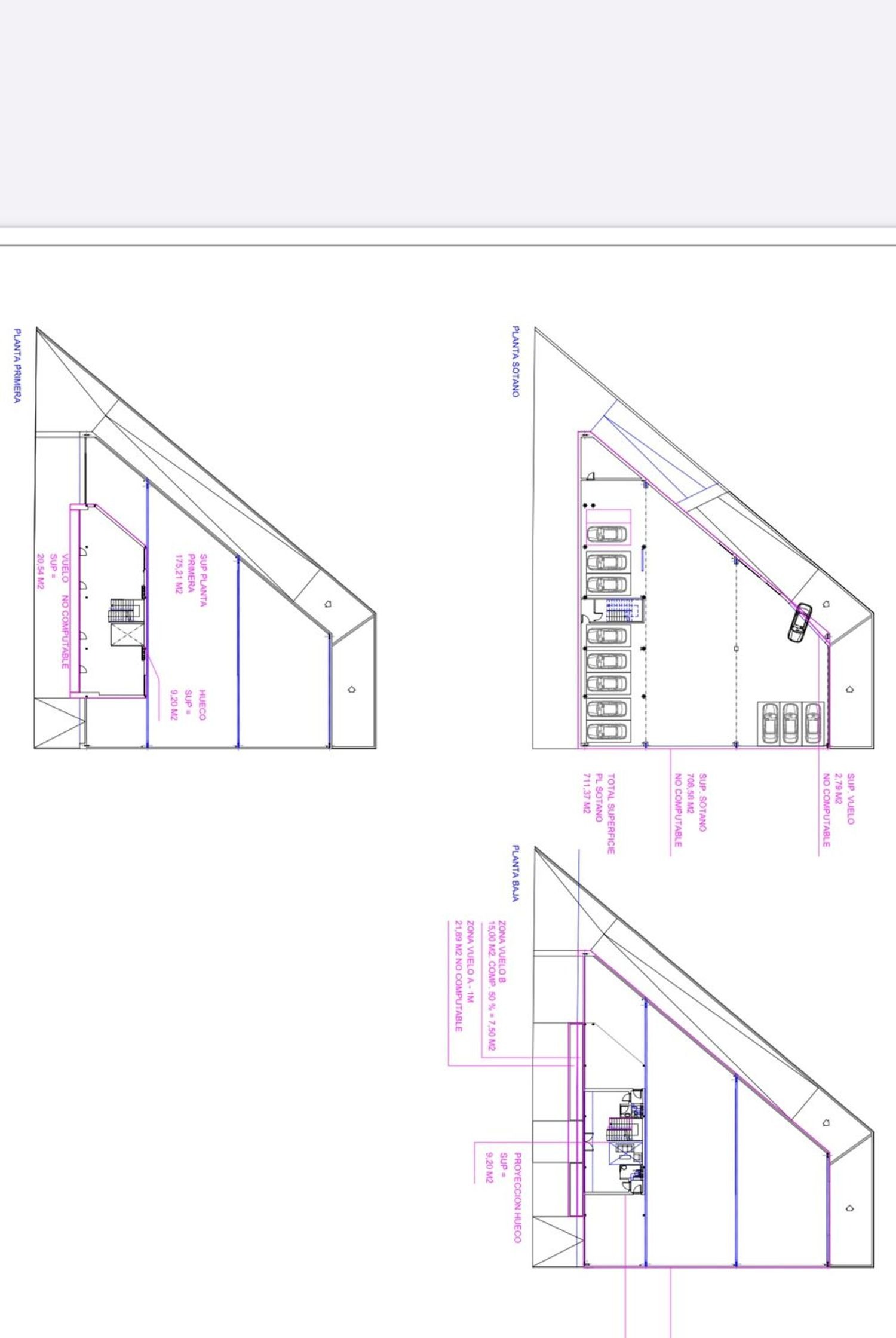
Nave 1.600 m²
Distribución: 2 plantas sobre rasante + sótano
Almacén planta baja: 650 m², Altura: 10 m, con acceso directo para vehículos.
Oficina: planta 1ª: 210 m²
Almacén semisótano: 710 m², altura: 3,60 m con acceso directo para vehículos.
El edificio cuenta con grandes ventanales, es muy luminoso y funcional, se trata de una nave muy versátil, adaptable a cualquier actividad. La ubicación es perfecta, muy bien comunicada mediante transporte público (metro ligero de Boadilla) y por carretera, muy próxima a M-50, M-40 y M-501.
La zona dispone de todos los servicios, restaurante, hoteles, todo tipo de empresas. La proyección a futuro conlleva la construcción de un hospital de reconocido prestigio y la implantación de nuevos negocios. Se encuentra muy próximo a la Ciudad Financiera del Banco Santander.
Les invitamos a visitar esta fantástica nave.
Características básicas
• 1.600 m² construidos
• 3 plantas
• Buen estado
• 6 estancias
• 2 Baños
• Situado a pie de calle
• Hace esquina
• 2 escaparates
• Año de construcción 2025
Edificio
• Bajo
• Certificación energética F
Equipamiento
• Almacén
• Puerta de seguridad




























